VIVIENDA REFOMADA BERRIOZAR

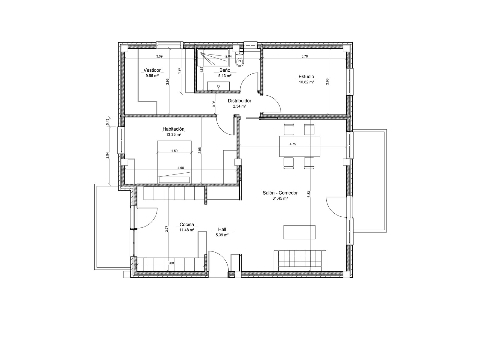
Partimos de una vivienda de 109 m2 con una distribución tradicional a base de un pasillo que va relacionando los diferentes espacios.

Se tomó la decisión de combinar varios elementos de la vivienda. Accedemos a ella y un hall abierto nos recibe, desde donde ya podemos intuir la relación de espacios que continúan. Un gran salón comedor que se relaciona con la cocina abierta, permitiendo así la relación visual de espacios, generando una basta sensación de amplitud.

-Mejora de aislamiento (paredes exteriores y techos) -Mejora de carpinterias exteriores -Mejora de aislamiento acústico